Opis nieruchomości
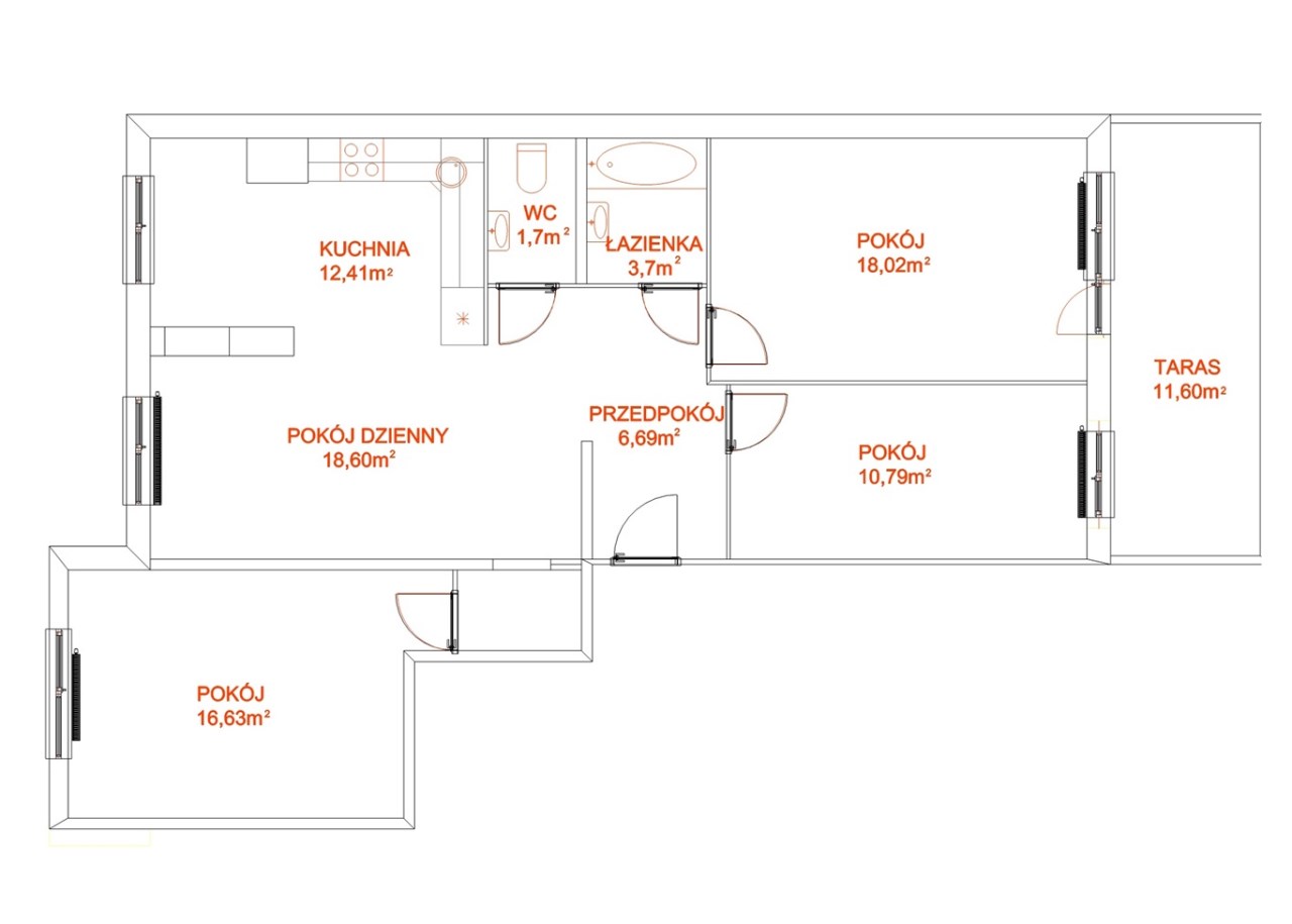
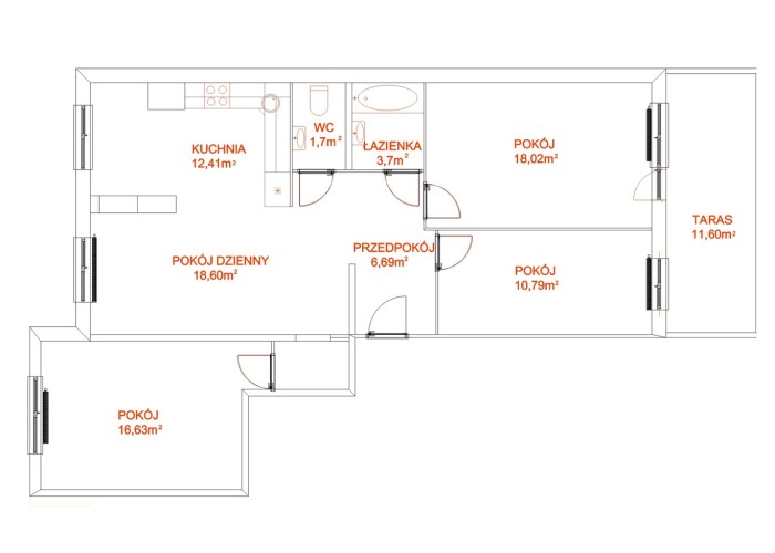
Szukasz nieruchomości, która łączy przestrzeń domu jednorodzinnego z wygodą mieszkania w świetnie skomunikowanej lokalizacji? Na sprzedaż wyjątkowo przestronne mieszkanie o powierzchni 88,66 m², położone w zielonej i spokojnej części Czeladzi (dzielnica Piaski), tuż przy granicy z Sosnowcem.
To idealna propozycja dla rodziny szukającej gotowej przestrzeni do życia lub osób, które chcą zainwestować w nieruchomość o unikalnym metrażu i niskiej zabudowie.
Mieszkanie znajduje się w otoczeniu niskiej zabudowy i zieleni, co gwarantuje ciszę i spokój. Jednocześnie punkt ten jest doskonale skomunikowany z miastami ościennymi Sosnowcem, Dąbrową Górniczą, Będzinem, Katowicami. W pobliżu pełna infrastruktura: sklepy, szkoły, przystanki komunikacji miejskiej.
W mieszkaniu nieco ponad rok temu został przeprowadzony remont łazienki, toalety, wymieniono drzwi wewnętrzne we wszystkich pomieszczeniach oraz podłogi. W cenie mieszkania pozostaje zabudowa kuchenna wraz ze sprzętem AGD. Pozostałe umeblowanie – do uzgodnienia.
Układ mieszkania:
Salon z aneksem kuchennym, 3 niezależne sypialnie, łazienka, osobne WC, przedpokój.
Taras, przynależna piwnica.
Media:
Ogrzewanie i ciepła woda z sieci miejskiej, internet i TV kablowa (UPC).
Parking:
Bezpośrednio przy budynku.
Stan prawny:
Mieszkanie o statusie pełna własności z księgą wieczystą, bez obciążeń.
Opłaty miesięczne:
1600 zł - zawierają zaliczki na ogrzewanie, fundusz remontowy i eksploatację, gaz miejski, wodę
Zapraszamy!
Nota prawna
Przedstawione ogłoszenie nieruchomości nie jest ofertą handlową w rozumieniu przepisów prawa i jedynie ma charakter informacyjny. Wszelkie zamieszczone zdjęcia nieruchomości, teksty, filmy stanowią własność firmy Biuro Nieruchomości: DELFIS Tomasz Suchy w rozumieniu prawa autorskiego. Wykorzystywanie ich do dalszego kopiowania lub rozpowszechniania bez pisemnej zgody autora stanowi naruszenie praw autorskich i pociąga za sobą odpowiedzialność karną.
Szczegóły



